Площадь дома - 500 м2
3 этажа
6 комнат
Год проектирования: 2017 г
В этом проекте мы пытались максимально воссоздать классицизм, используя традиционные формы, выразить солидность, стабильность, надежность и долговечность.
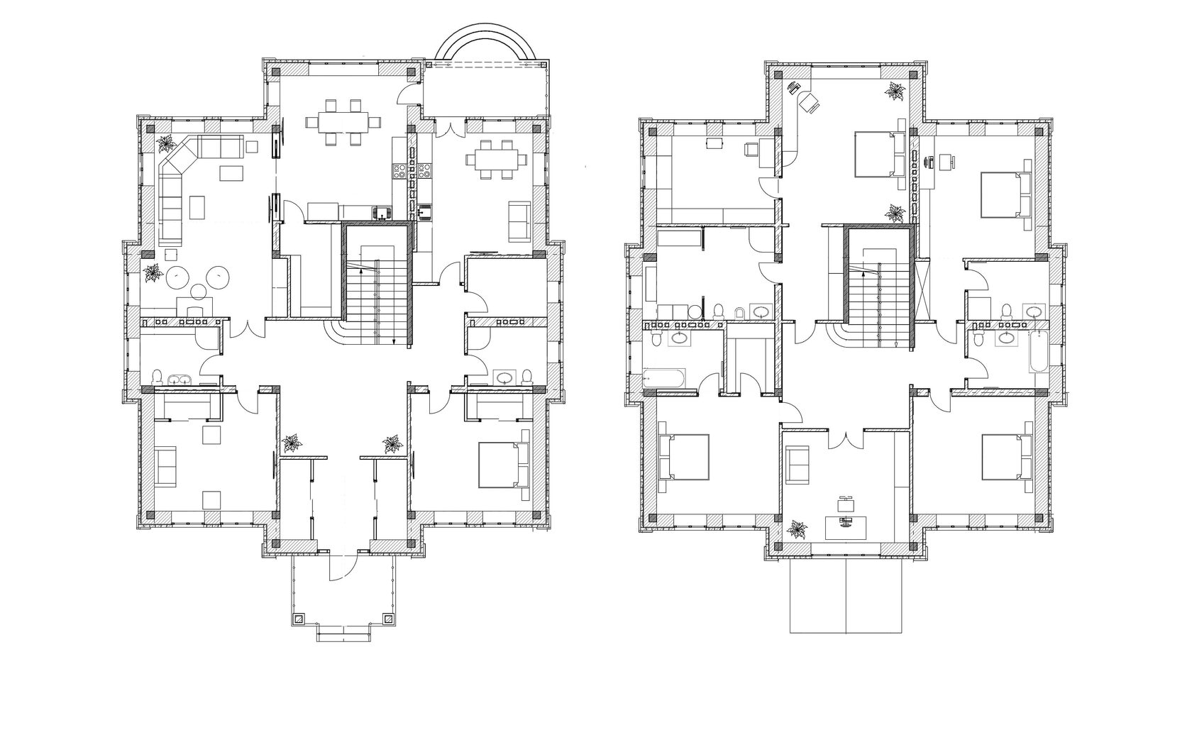
Это дом для постоянного проживания в плане имеет размер 16 на 18 м, площадью 500 м2, с двумя полноценными этажами, и мансардным этажом, образованным многоскатной вальмовой кровлей. Дом заглублен на 15 м. Здание в плане абсолютно симметричное, представляет собой прямоугольный объем с ризалитами выходящими на все 4 фасада. Ризалит это выступающая часть здания, во всю его высоту. Он расположен по центральной оси здания и увенчан треугольным фронтоном. Функция ризалита исключительно композиционная, он оформлен как самостоятельный архитектурный элемент .
Мы использовали максимально натуральные материалы керамики, металла, стекла и камня. Цветовое решение получилось достаточно консервативно, это колер кирпича, бежевого фасадного декора и графитовой фальцевой кровли.Облицовочный кирпич фирмы Терка, коллекция Форум, Портсмуас, ручной формовки. Он отличается уникальным внешним видом: и максимально приближен к настоящему старинному кирпичу. Несмотря на обилие деталей и декоративных элементов, здесь нет ничего лишнего: В качестве декора фасада использовался натуральный камень: это рустовка цоколя, молдинг, карниз в фронтоне, наличники вокруг окон с замковым камнем. С парадного и заднего входа к дому ведут широкие лестницы с удобными каменными ступенями.
Несущий остов выполнен из железобетонного каркаса,с монолитными перекрытиями, которые заполнены крупноформатными керамическими блоками, толщиной 51см.
Считается что стены из керамических блоков создают для человека самые благоприятные условия существования, так как по своим свойствам приравниваются к керамическому кирпичу.При возведении стен из блоков толщиной 51см , не требуется дополнительный слой утеплителя. Поэтому здесь двухслойный состав стены. Утеплитель дополнен только в зоне железобетонных колонн. Все внутренние несущие стены и перегородки и трубы выложены из кирпича.
Если мы посмотрим на планы этого дома, то на всех этажах в центре будет большая парадная лестница с квадратным в холлом, вокруг которой располагаются все комнаты. Эта планировочное решение удобно тем, что сокращаются коридоры и увеличивается полезная площадь дома. высота потолков первого и второго этажа 3,5 м, что так же сейчас ценится в наше время. При таком объеме чувствуешь больше свободы и красоты от будущего интерьера.
Это дом для постоянного проживания в плане имеет размер 16 на 18 м, площадью 500 м2, с двумя полноценными этажами, и мансардным этажом, образованным многоскатной вальмовой кровлей. Дом заглублен на 15 м. Здание в плане абсолютно симметричное, представляет собой прямоугольный объем с ризалитами выходящими на все 4 фасада. Ризалит это выступающая часть здания, во всю его высоту. Он расположен по центральной оси здания и увенчан треугольным фронтоном. Функция ризалита исключительно композиционная, он оформлен как самостоятельный архитектурный элемент .
Мы использовали максимально натуральные материалы керамики, металла, стекла и камня. Цветовое решение получилось достаточно консервативно, это колер кирпича, бежевого фасадного декора и графитовой фальцевой кровли.Облицовочный кирпич фирмы Терка, коллекция Форум, Портсмуас, ручной формовки. Он отличается уникальным внешним видом: и максимально приближен к настоящему старинному кирпичу. Несмотря на обилие деталей и декоративных элементов, здесь нет ничего лишнего: В качестве декора фасада использовался натуральный камень: это рустовка цоколя, молдинг, карниз в фронтоне, наличники вокруг окон с замковым камнем. С парадного и заднего входа к дому ведут широкие лестницы с удобными каменными ступенями.
Несущий остов выполнен из железобетонного каркаса,с монолитными перекрытиями, которые заполнены крупноформатными керамическими блоками, толщиной 51см.
Считается что стены из керамических блоков создают для человека самые благоприятные условия существования, так как по своим свойствам приравниваются к керамическому кирпичу.При возведении стен из блоков толщиной 51см , не требуется дополнительный слой утеплителя. Поэтому здесь двухслойный состав стены. Утеплитель дополнен только в зоне железобетонных колонн. Все внутренние несущие стены и перегородки и трубы выложены из кирпича.
Если мы посмотрим на планы этого дома, то на всех этажах в центре будет большая парадная лестница с квадратным в холлом, вокруг которой располагаются все комнаты. Эта планировочное решение удобно тем, что сокращаются коридоры и увеличивается полезная площадь дома. высота потолков первого и второго этажа 3,5 м, что так же сейчас ценится в наше время. При таком объеме чувствуешь больше свободы и красоты от будущего интерьера.