Площадь участка - 2250 м2.
Площадь застройки - 450 м2
Площадь - 1000 м2,
21 номер.
Год проектирования: 2022
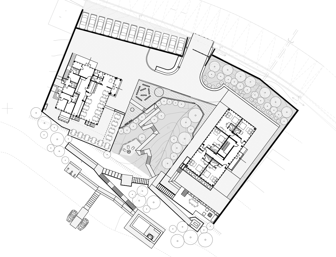
Концептуально проект представляет собой вариант благоустройства территории гостиничного комплекса и архитектурно-планировочного решения зданий.
Главная идея заключается в создании удобной и комфортной среды для жителеи и гостеи комплекса.
На участке запроектированы:
- Гостиничный корпус
- Гостиничный корпус с кафе и пентхаусом на крыше
- баня,
- парковка,
- причал,
- смотровые площадки и террасы
- площадка для фитнеса
Помимо горного ландшафта и обрывистого берега к реке, основными доминантами комплекса являются два здания гостиницы. Они представляют собой два куба, расположенных асимметрично относительно друг друга. Мы считаем что это максимально соответствует масштабу окружающего ландшафта, а так же его природной живописности.
Ассиметричная планировка участка, в сочетании с панорамным остеклением, дает возможность получить нестандартные панорамы из каждого гостиничного номера.
Минималистичный дизайн фасадов зданий из металла и стекла, дополняет благоустройство участка, выполненое из камня и дерева.
Главная идея заключается в создании удобной и комфортной среды для жителеи и гостеи комплекса.
На участке запроектированы:
- Гостиничный корпус
- Гостиничный корпус с кафе и пентхаусом на крыше
- баня,
- парковка,
- причал,
- смотровые площадки и террасы
- площадка для фитнеса
Помимо горного ландшафта и обрывистого берега к реке, основными доминантами комплекса являются два здания гостиницы. Они представляют собой два куба, расположенных асимметрично относительно друг друга. Мы считаем что это максимально соответствует масштабу окружающего ландшафта, а так же его природной живописности.
Ассиметричная планировка участка, в сочетании с панорамным остеклением, дает возможность получить нестандартные панорамы из каждого гостиничного номера.
Минималистичный дизайн фасадов зданий из металла и стекла, дополняет благоустройство участка, выполненое из камня и дерева.